7. Конструирование зубчатых колес
Основные параметры зубчатых, червячных колес и червяков (диаметр, ширина, модуль, число зубьев и пр.) определены при проектировании передач. Конструкция колес и червяков зависит главным образом от проектных размеров, материала, способа получения заготовки и масштаба производства.
Основные конструктивные элементы колеса – обод, ступица и диск (рис. 7.1).
Рис. 7.1. – Конструктивные элементы колеса:
а – цилиндрического;б– конического;в– червячного
Обод воспринимает нагрузку от зубьев и должен быть достаточно прочным и в то же время податливым, чтобы способствовать равномерному распределению нагрузки по длине зуба. Жесткость обода обеспечивает его толщина S.
Ступица
служит для соединения колеса с валом и
может быть расположена симметрично,
несимметрично относительно обода или
равна ширине обода.
Диск соединяет обод и ступицу. Его толщина С определяется в зависимости от способа изготовления колеса. Иногда в дисках колес выполняют отверстия, которые используют при транспортировке и обработке колес, а при больших размерах и для уменьшения массы. Диски больших литых колес усиливают ребрами или заменяют спицами.
Острые кромки на торцах ступицы и углах обода притупляют фасками f, размеры которых принимают по табл. 7.1.
Таблица 7.1.
Стандартные размеры фасок, мм
Диаметр ступицы или обода | Св. | Св. 30 до 40 | Св. 40 до 50 | Св. 50 до 80 | Св. 80 до 120 | Св. 120 до 150 | Св. 150 до 250 | Св. 250 до 500 |
f | 1,0 | 1,2 | 1,6 | 2,0 | 2,5 | 3,0 | 5,0 |
В
проектируемых приводах колеса редукторов
получаются относительно небольших
диаметров и их изготовляют из круглого
проката или поковок. Большие колеса
открытых зубчатых передач изготовляют
литьем или составными.
Рис. 7.2. – Конструкция зубчатых цилиндрических колес:
а – круглый прокат, б – ковка, в – ковка, г – штамповка, д – литье, е – составные
Рис. 7.2. – Конструкция зубчатых цилиндрических колес (продолжение)
Таблица 7.2.
Размеры зубчатых колес
Элемент колеса | Размер | Способ получения заготовки | ||
круглый прокат, ковка | ковка, штамповка | литье, составные | ||
Обод | Диаметр | d0<100 мм | d0=100…500 мм | d0>500 мм |
Толщина | S=2,2m+0,05b2 | S=2,2m+0,05b2, h=0,1b2, S0=1,2S, t | ||
Ширина | b2(см. | |||
Ступица | Внутренний диаметр | d=d3 | ||
Наружный диаметр | dст=1,55d при соединении шпоночном и с натягом | |||
Толщина | δст=0,3·d | |||
Длина | а)lст=b2 б)lст=(1,0…1,5) d | lст=(1,0…1,5)d | ||
lст=(1,0…1,2)d – оптимальное значение | ||||
Диск | Толщина | |||
Радиусы закруглений и уклон | R≥1 | R≥6,γ≥7º | R≥10,γ≥7º | |
Отверстия | — | — | d0>25 мм; n0=4. | |
Примечания: 1. При определении длины ступицы 2. На торцах зубьев выполняют фаски размером f=(0,6…0,7)mс округлением до стандартного значения по табл. 7.1. 3. Угол фаски αф: на прямозубых колесахαф=45°; на косозубых колесах при твердости рабочих поверхностей НО50НВαф=45°, а при Н>350НВαф=15° | ||||
Ступицу
колес цилиндрических редукторов
располагают симметрично
относительно
обода, а ступица колес открытых
цилиндрических зубчатых передач может
быть расположена симметрично
и несимметрично относительно
обода. Ступица колес закрытых и открытых
передач конического зацепления выступает
со стороны большого конуса.
1.2. Элементы зубчатого колеса
Наиболее часто в различных машинах применяют зубчатые колёса среднего диаметра (примерно от 80 до 200 мм). Такие колёса изготавливают дисковыми (рис. 3 а). Колёса большего диаметра делают со спицами (рис. 3 б), а небольшого – сплошным, т.е. без диска и без спиц (рис. 3 в).
а)
б)
в)
Рис. 3. Виды зубчатых колес: а – дисковое зубчатое колесо;
б – зубчатое колесо со спицами; в – сплошное зубчатое колесо
Основными элементами зубчатого колеса (рис. 4) являются зубья, каждый зуб состоит из головки зуба и ножки. Зубья находятся на ободе колеса и вместе с ободом составляют зубчатый венец: более тонкая часть колеса – диск соединяет ступицу с ободом, внутри ступицы делают отверстие для вала с пазом для ш
понки. Шлицевое
соединение показано на покадровых рис.
25 – 27 или в демоверсии на компакт диске.
На рис. 4 показаны условные изображения
элементов зубчатого колеса.
Рис.
4. Условные изображения элементов
зубчатого колеса: df – окружность
впадин,
проходящая по очертаниям впадин между
зубьями: её условно изображают сплошной
тонкой линией; dоб – окружность
обода,
обозначающая внутреннее очертание
обода; dст – окружность
ступицы,
обозначающая внешнее очертание
ступицы; dв – диаметр окружности отверстия для
вала; h–
высота зуба; hа – высота головки зуба; hf–
высота ножки зуба; da – окружность
вершин –
это самая
большая окружность, ограничивающая
вершины головок зубьев колес: её условно
изображают сплошной основной линией;
d
– делительная
окружность,
делящая каждый зуб на две неравные
части: меньшую – головку зуба и большую
– ножку зуба: её условно изображают
штрихпунктирной тонкой линией;
Pn – нормальный шаг
зубьев – кратчайшее расстояние по
делительной или начальной поверхности
зубчатого колеса между эквидистантными
одноименными теоретическими
линиями соседних зубьев; S
– толщина зуба; Z
– число зубьев; m
– нормальный модуль зубьев – это
линейная величина в
раз меньшая нормального шага зубьев;
bпаза – ширина шпоночного паза; tj – глубина шпоночного паза.
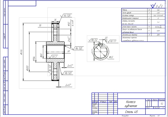
При выполнении рабочего чертежа зубчатого колеса при заданных исходных данных, согласно табл. 1, необходимо рассчитать элементы зубчатого колеса по формулам, приведенным в табл. 2, 3.
Таблица 1
Наименование параметра
Обозначение
Числовые значения
Число зубьев колеса
z
Смотри вариант задания
Модуль
m
Диаметр отверстия колеса
dв
Таблица 2
Расчет основных геометрических параметров
цилиндрической зубчатой передачи
Наименование параметра | Обозначение | Расчётная формула |
Межосевое расстояние | ||
Делительный диаметр | ||
Диаметр вершин зубьев | ||
Диаметр впадин зубьев | ||
Радиальный зазор | ||
Высота головки зуба | ||
Высота ножки зуба | ||
Высота зуба | ||
Нормальный шаг |
Таблица 3
Конструктивные параметры цилиндрического зубчатого колеса
Наименование параметра | Обозначение | Расчётная формула |
Ширина венца зубчатого колеса | ||
Диаметр обода | ||
Толщина обода | – для литых колёс; – для штампованных колёс |
Окончание табл.
3
Наименование параметра | Обозначение | Расчётная формула |
Толщина диска зубчатого колеса | При мм принимают | |
Длина ступицы | ||
Наружный диаметр ступицы | – для чугунных колёс; – для стальных колёс | |
Размер шпоночного паза в ступице колеса | Размеры паза и по ГОСТ 23360-78; ГОСТ 24071-80 | |
Размеры фасок на окружности вершин колеса | ||
Размеры фасок в отверстии ступицы колеса | ||
Неуказанные конусности | 1:8 | |
Неуказанные радиусы скругленийпереходов | мм |
Примечание.
Расчетные конструктивные размеры
элементов колеса рекомендуется округлить
в соответствии с ГОСТ 6636 – 83. Нормальные
линейные размеры.
GearHub Спорт | Главная — GearHub Спорт
Как показано в Amazing Race
Выбирайте велосипеды в ПРОДАЖЕ прямо сейчас!
Бесплатная доставка при заказе от 250 долларов США*
Откройте для себя наши продукты
- Рекомендуемые
- Новый
- Популярные
Быстрый магазин
SRAM, направляющая T, предварительно собранный гидравлический дисковый тормоз, алюминий, DOT 5.1, передний
Легкий 4-поршневой суппорт двойного диаметра
MatchMaker™ co.
Быстрый магазин
Кона, Ланай, 2022 г.

Все мы помним наш первый горный велосипед. Для многих из нас это
999,00 канадских долларов. 799,20 руб.
Наши бренды
Купить сейчас
Категории
Велосипеды
Аксессуары
Компоненты
ОДЕЖДА
Кемпинг
Шлемы
Рюкзаки и спортивные сумки
Кухня и увлажнение
Новости GearHub
Наш блог
Абсолютный чемпион EWS 2022: интервью с Джесси Меламедом
.
..
Подробнее
Подробнее
Абсолютный чемпион EWS 2022: интервью с Джесси Меламедом
…
Подробнее
TransRockies Gravel Royale направляется в Ферни!
Четырехдневная многодневная гонка на гравийных велосипедах с посещением Панорамы, Нипики, Канал-Флэтс и Ферни…
Подробнее
Отчет о 6-часовой гонке Salty Dog
Спонсируемые спортсмены-гонщики на горных велосипедах Джена Гризер и Дилан Бейли начали свой сезон 2022 года 15 мая в Салмон-Арм, Британская Колумбия, в Солти-До…
Подробнее
ЧТО ЗНАЧИТ «ЛЫЖНЫЙ ВИД»
Неудивительно, почему: в начале пандемии, когда горнолыжные курорты были закрыты, лыжники стекались в отдаленные районы, чтобы поправиться.
…
Подробнее
Загляните к нам в Instagram @gearhub_sports!
Втулки Internal-Gear
Втулки Internal-GearСообщения о закрытии этого веб-сайта сильно преувеличены! Мы на sheldonbrown.com благодарим Harris Cyclery за многолетнюю поддержку. Harris Cyclery закрылась, но мы продолжаем работать. Продолжайте посещать сайт для получения новых и обновленных статей, а также новостей о возможных новых связях.
Втулки с внутренним зацеплением
Работа продолжается — материал по каждому типу втулки
перемещается в отдельные файлы.
Эта работа завершена для большинства концентраторов.
Шелдон «Numbers» Браун
дополнительный материал Джон «Fractions» Аллен
Он-лайн калькулятор зубчатых колес для ступиц с внутренним зацеплением
- Общие замечания
- Как это работает
- Смазка
- Регулировка цепи
- Защита от вращения
- Настройка диапазона передач с помощью:
- 3 скорости
- от 5 до 8 скоростей
- 9 или более скоростей
- Гибридная передача
Обратите внимание, что 2-скоростные тормоза описаны на нашей странице о ножных тормозах, хотя некоторые из них без тормозов.
На странице ножного тормоза также представлена общая информация, относящаяся к ступицам с ножным тормозом, описанным на этой странице.
Общие замечания
С первого десятилетия 20-го века втулки с внутренним зацеплением, обычно трехскоростные, предлагали велосипедистам практичный и надежный вариант переключения передач. С ростом популярности переключателей передач в начале 1970-х годов, во время велосипедного бума, втулки с внутренним зацеплением вышли из моды на большинстве рынков США. Это прискорбно, потому что многие случайные или утилитарные велосипедисты лучше всего подходят для этого типа передачи.
Втулки с внутренним зацеплением более надежны, чем системы переключения передач, и требуют гораздо меньшего обслуживания. Повышающие передаточные числа их высших передач делают ненужными большие передние звезды на велосипедах с маленькими колесами. В отличие от переключателей, втулки с внутренней передачей могут переключаться при остановке, что очень удобно в городском движении с частыми остановками.
Втулки с внутренним зацеплением, как правило, тяжелее систем переключателей и немного менее эффективны на некоторых передачах. С другой стороны, средняя шестерня с прямым приводом ступицы с внутренним зацеплением может быть более эффективной, поскольку шкивы переключателя передач не вызывают сопротивления. Большинство втулок с внутренним зацеплением не могут иметь быстросъемную ось.
Если вас интересуют старые велосипеды или история такого рода передач, обратитесь к моей странице English Three Speeds.
Как работает втулка с внутренним зацеплением
Ступицы с внутренним зацеплением работают по принципу «планетарного зацепления».
Базовые трехскоростные втулки имеют одинарную солнечную шестерню, жестко прикрепленную к середине оси. 3 или 4 одинаковые «планетарные» шестерни входят в зацепление с «солнечной» шестерней и вращаются вокруг нее. Шестерни «планеты» окружены (и входят в зацепление) с «зубчатым кольцом» с зубьями внутри (шестерня, вывернутая наизнанку).
Поскольку планетарные шестерни, прикрепленные к детали, называемой «сателлитной коробкой», вращаются, зубчатый венец совершает 4 оборота за каждые 3 оборота планетарной клетки. (Некоторые модели имеют другие передаточные числа.)
- Низкая передача имеет звездочку, приводящую в движение зубчатый венец, а планетарная клетка приводит в движение ступицу. Таким образом, колесо оборачивается 3 раза на каждые 4 оборота звездочки, понижая передачу на 25%.
- Средняя шестерня имеет звездочку, все еще приводящую в движение зубчатый венец, но зубчатое венец приводит в движение ступицу. Таким образом, привод является прямым. Хотя внутренние шестерни всегда вращаются, когда звездочка находится в движении, они не оказывают никакого влияния на привод на средней передаче.
- High Gear переключает привод звездочки на сепаратор планетарной передачи, в то время как зубчатый венец продолжает вращать корпус втулки. Таким образом, ступица поворачивается 4 раза на каждые 3 оборота звездочки, что дает увеличение передачи на 33%.

Более подробное объяснение этого есть на веб-сайте Sturmey-Archer, откуда я взял изображение выше.
Втулки с более чем тремя скоростями используют две или три планетарные ступени и/или составные (ступенчатые) планетарные шестерни с двумя или более наборами зубьев, расположенными рядом — см. статью Джона Аллена, описывающую их более подробно. Составные планетарные шестерни должны быть «синхронизированы» при восстановлении ступицы — выровнены так, чтобы зубья различных секций правильно сцеплялись, — иначе ступица будет работать неровно и может быть повреждена.
В конце 1990-х внутренние зубчатые передачи пережили своего рода ренессанс с появлением широкодиапазонных 7-скоростных втулок. С тех пор прогресс продолжается. В настоящее время доступны четыре разных бренда с 14 скоростями. Трех- и пятиступенчатые коробки передач все еще производятся, и они предлагают экономичную и практичную альтернативу. Также стала доступна передача в каретке.
Смазка
Старые ступицы с внутренним зацеплением имеют масляный фитинг на корпусе. Масляная смазка создает меньшее сопротивление, чем консистентная смазка. Используйте машинное масло, а не аэрозольную смазку или другое жидкое масло. Если ступица не имеет герметичных подшипников, также используйте консистентную смазку, чтобы сформировать уплотнение на подшипниках и удержать масло внутри.
Пара новых втулок, Rohloff Speedhub и 11-скоростная втулка Shimano Alfine, смазываются маслом. Другие современные ступицы с внутренним зацеплением поставляются с консистентной смазкой. В том состоянии, в котором они продаются, они требуют периодической чистки и пополнения специальной смазки, которая не заедает собачки. Shimano продает комплект для повторного смазывания ступиц, смазываемых консистентной смазкой. Тем не менее, многие ступицы плохо смазываются при продаже, и сообщалось о частых отказах ступиц с консистентной смазкой из-за загрязнения водой во влажном климате — см.
фотографии здесь. Лучшее смазывание позволяет обойти эту проблему.
Лучше всего добавлять масло в режим смазки при восстановлении ступицы, чтобы она начала работать без сбоев и одновременно смазывать подшипники. Это желательно даже с новой ступицей. Следуйте примеру, показанному на фотографиях из Aaron’s Bike Repair (в нижней части страницы, после того, как вы пройдете ужасные фотографии ржавых деталей вверху). Используйте большое количество водостойкой морской смазки (такой, которая используется в подшипниках колес лодочных прицепов) для подшипниковых узлов — это предотвратит проникновение воды и проникновение масла; использовать легковесную белую литиевую смазку для шестерен, особенно с современными широкорасходными ступицами, которые плохо удерживают масло; Масло Phil Wood Tenacious Oil на собачках и в корпусе, чтобы оно попало туда, куда не попала смазка.
Ступицу внутреннего зацепления с полой осью можно повторно смазать, сняв толкатель или индикаторный стержень и впрыскивая масло в конец оси.
9-ступенчатую модель SRAM i-Motion с дисковым тормозом можно смазывать через отверстие ротора дискового тормоза. Если диск не установлен, заглушите все отверстия крепежными винтами между смазками. На ступицу, которая не позволяет использовать один из этих трюков, вы можете установить масляную крышку Sturmey-Archer. Инструменты: сверло №3 (или 5,5 мм) и метчик 1/4 дюйма, 28 TPI. Вам нужно удалить его внутренности из корпуса, чтобы просверлить и нарезать отверстие, а также очистить металлическую стружку.
Масленка Sturmey-Archer на корпусе 8-скоростной втулки Shimano Nexus
Более простой, но менее удобный подход — отвинтить конус левого подшипника и впрыснуть масло через левый конец оси.
Если масло вытекает, оно вымывает частицы износа, грязь и воду из механизма, а также покрывает кожух втулки — пачкается. При чрезмерном использовании масло может стекать по спицам на обод, размягчать резину тормозных колодок и вызывать визг и схватывание ободного тормоза.
Это опасно для переднего колеса, но ступица с внутренним зацеплением находится в заднем колесе. Очистка от масла и резины тормозных колодок восстанавливает работу тормозов.
Хранить велосипед лучше всего в неотапливаемом (но сухом) месте. Когда вы вынимаете его из нагретого помещения в прохладную, влажную или мокрую погоду, воздух внутри втулки сжимается, втягивая влагу. Если вы должны хранить свой велосипед в отапливаемом помещении, будьте особенно осторожны с маслом на втулке.
Старые 3-ступенчатые тормоза с ножным тормозом Sturmey-Archer имеют масляный фитинг, но для других ступиц с ножным тормозом требуется специальная высокотемпературная смазка для тормозных колодок. Некоторые втулки используют другую смазку для остального механизма, поэтому собачки не прилипают. Ножной тормоз во втулке с внутренним зацеплением в целом является плохой идеей, потому что он генерирует частицы износа и потому что вы не можете использовать масляную смазку.
Смазка маслом может вызвать проблемы с барабанным тормозом, просачиваясь через подшипник и загрязняя тормозные колодки. Масло Phil Wood Tenacious Oil остается на месте лучше, чем большинство других масел. В отличие от велосипеда с переключателем передач, если вам необходимо хранить или транспортировать велосипед в горизонтальном положении, положите его на правый бок, чтобы предотвратить попадание масла в барабан. Подложите что-нибудь под заднее колесо, чтобы собрать капли, особенно если вы только что смазали ступицу маслом.
Роликовые тормоза Shimano, поставляемые со втулками с внутренним зацеплением, находятся снаружи корпуса втулки, что позволяет избежать загрязнения. Роликовые тормоза используют стальные тормозные колодки внутри стального барабана и требуют периодической смазки специальной высокотемпературной смазкой.
Регулировка цепи
Втулки с внутренним зацеплением обычно используют одну звездочку и одну звездочку. Цепь удерживается на месте за счет перемещения оси втулки назад в пазах дропаутов до тех пор, пока цепь не станет едва провисающей, или велосипед с вертикальными дропаутами может иметь эксцентричную каретку.
По мере износа цепь удлиняется и с большей вероятностью упадет. Его необходимо периодически корректировать. Втулка свободного хода, а не втулка с фиксированной передачей или ножным тормозом, может вместо этого использовать натяжитель цепи со шкивом. Более подробная информация находится на нашей странице о трансмиссиях без переключателей.
Антиротациясообщите об этом объявлении
Ось является частью зубчатой передачи ступицы с внутренним зацеплением. Вы можете убедиться в этом сами. Если вы держите корпус втулки или обод, когда втулка не установлена на велосипеде, и поворачиваете звездочку, ось также поворачивается — назад, если передаточное число втулки ниже 1:1, вперед, если выше.
В большинстве втулок специальные стопорные шайбы предотвращают вращение оси, когда колесо установлено на велосипеде. Эти шайбы входят в зацепление с плоскими поверхностями на оси и имеют выступы, которые входят в прорези дропаута. Разные шайбы подходят к разным моделям втулок и разным размерам дропаутов.
Во многих новых ступицах трос переключения передач крепится к шкиву, который вращается вокруг оси ступицы. В зависимости от ориентации прорези дропаута требуются разные шайбы, чтобы трос переключения передач мог подходить к передней части велосипеда. Следуйте инструкциям для каждого концентратора.
Стопорные шайбы для втулок Shimano Nexus и Alfine с внутренним зацеплением
Тормоз втулки также должен сопротивляться вращению. В ножных тормозах и барабанных тормозах на ступицах с внутренним зацеплением для этой цели используется реактивный рычаг, отдельный от шайбы, препятствующей вращению. Вы все равно должны установить стопорные шайбы. Втулка Rohloff с внутренним зацеплением не включает тормоз, но имеет настолько широкий диапазон передач, что в некоторых моделях используется реактивный рычаг, а в других — кронштейн, который крепится к выступам дискового тормоза.
На велосипеде с задней подвеской шарнир подвески обычно находится впереди задней ступицы.
Поскольку он пытается вращать ось втулки, втулка с внутренним зацеплением поднимает заднюю часть велосипеда на передачах ниже 1: 1 и опускает ее на передачах выше 1: 1. Возникающее в результате «зависание» влияет на эффективность педалирования в степени, которая зависит от конструкции подвески и выбора передачи.
Выбор звездочек и звездочек
Выбрав звездочку и звездочку соответствующего размера, общий диапазон любой ступицы с внутренним зацеплением можно увеличить или уменьшить на любую желаемую величину. В большинстве современных ступиц с внутренним зацеплением используются 3-шлицевые звездочки с внутренним диаметром 1 3/8 дюйма, взаимозаменяемые среди производителей. Эти звездочки доступны из разных источников с числом зубьев от 13 до 24, хотя некоторые ступицы не подходят для самых маленьких звездочек.
Звездочка с 3 выступами для цепи 1/8″. Эта звездочка имеет 22 зубца.
В втулке Rohloff Speedhub используется специальная звездочка с резьбой; втулки SRAM i-Motion 9, G8 и G9 и Sturmey-Archer 8- на скоростях используются запатентованные звездочки с проушинами; некоторые модели Sturmey-Archer имеют 9 шлицов, как втулка Shimano Freehub.
Номера моделей этих втулок Sturmey-Archer заканчиваются на «(N)». Цепь диаметром 8 дюймов — шире, чем цепь, используемая в редукторе переключателя передач. Более широкую цепь можно использовать с тонкими звездочками, предназначенными для использования с переключателями, хотя специальные гусеничные звездочки имеют более высокие и широкие зубья и позволяют цепи ослабляться, прежде чем она может упасть. Звездочки с 3 проушинами для цепи переключателя продаются со штампованными выступами вокруг отверстия, чтобы они подходили к ступице так же, как и более толстые звездочки. С более узкими звездочками используйте цепь, предназначенную для 7- или 8-ступенчатой системы переключения передач.
Звездочка с 20 зубьями для более узкой цепи, имеющая такую же форму, как и более толстая звездочка. Стопорное кольцо можно поддеть тонкой плоской отверткой, а затем снять звездочку. Большинство звездочек, изготовленных для этой системы (включая те, что показаны выше), имеют «вогнутую форму», поэтому вы можете отрегулировать линию цепи, перевернув звездочку.
Стопорное кольцо защелкивается, также проще всего, если поддеть его отверткой с плоским лезвием. Некоторые ступицы принимают звездочки меньшего размера, выгнутые наружу, а не внутрь, из-за проблем с помехами. Некоторые ступицы имеют одну или две прокладочные шайбы в дополнение к звездочке. Изменение расположения прокладочных шайб и звездочки может отрегулировать линию цепи.
Звездочка с тремя выступами удерживается стопорным кольцом
После повторной установки звездочки рекомендуется установить на место стопорное кольцо, обойдя его и слегка постукивая по нему молотком и пробойником. Это особенно важно для втулки с ножным тормозом, потому что тормоз выйдет из строя, если звездочка соскользнет.
За исключением ступицы с фиксированной передачей или ступицей с ножным тормозом, можно удвоить срок службы звездочки с 3 выступами, перевернув ее так, чтобы износ находился на другой стороне зубьев — до тех пор, пока вы можете добиться хорошей цепи.
Довольно легко модифицировать любую звездочку кассеты Shimano, не имеющую встроенной прокладки.
Они доступны от 14-34 зубов. Кассетные звездочки Shimano имеют тот же внутренний диаметр, что и те, которые используются со втулками с внутренним зацеплением, но имеют 9 шлицов вместо 3. С помощью подходящей шлифовальной машины необходимо удалить 6 шлицов, а углы оставшихся трех закруглить. Также может понадобиться тонкая прокладочная шайба, потому что кассетные звездочки немного тоньше, чем стандартные звездочки. На втулке Sturmey-Archer (N) вы можете использовать немодифицированную звездочку Shimano Uniglide Freehub или один более широкий шлиц звездочки Hyperglide, но вам все равно понадобится прокладочная шайба.
Вы можете отрегулировать диапазон передач, заменив звездочку, хотя это обычно дороже, чем замена звездочки. Если вы устанавливаете большую звездочку или цепное колесо, вам понадобится более длинная цепь.
Некоторые втулки с внутренним зацеплением доступны с ременным приводом Gates Carbon Drive. Это чисто и оказалось надежным, но имеет свои особенности. В частности, линия цепи — ну, линия ремня — более критична, чем с цепью, и ремень всегда должен быть натянут при снятии и установке.
Снятие его со стороны звездочки повредит ее, что быстро приведет к отказу.
Перейдите к калькулятору передач Шелдона, чтобы оценить возможности передаточных чисел. Таблица передаточных чисел ступиц с внутренним зацеплением Джона Аллена позволяет сравнивать передаточные числа различных ступиц.
Трехскоростной
Все последние трехскоростные втулки, за исключением втулки с фиксированной передачей Sturmey-Archer S3X, имеют широкий диапазон с большими шагами между всеми передачами. Как производители велосипедов обычно настраивают трехскоростные, средняя передача слишком низкая для езды по ровной поверхности, чтобы высшая передача не была полностью бесполезной. Трехскоростная втулка послужит вам намного лучше, если вы установите заднюю звездочку большего размера или звездочку меньшего размера и будете использовать высшую передачу на ровной местности. Тогда низкие и средние передачи лучше подходят для ускорения и набора высоты. Если вы крутитесь на спусках, вы можете двигаться по инерции.
Шелдон пренебрежительно отзывался о движении по инерции, но на самом деле время от времени ездить по инерции лучше, чем карабкаться по холмам и не иметь снаряжения на ровной поверхности! Высшая передача с 3-ступенчатой скоростью обычно должна находиться в диапазоне от 70 до 80 дюймов передачи (развертывание от 5,6 до 6,4 метра, коэффициент усиления от 5,0 до 6,0), в зависимости от вашей силы и стиля педалирования — скажем, передняя звезда с 46 зубьями. и 22-зубчатая звездочка с 26-дюймовым задним колесом. Если местность, по которой вы едете, сплошь вверх и вниз, с небольшим уровнем земли или вообще без нее, вам могут понадобиться еще более низкие передачи. Защелкивающиеся педали или туклипсы и ремешки (практически только без ножного тормоза ) помогают вам крутить педали с более высокой частотой вращения педалей, поэтому ваш диапазон мощности шире — преимущество на любом велосипеде, но в большей степени на велосипеде с большими шагами между передачами.
от 5 до 8 скоростей
Втулка с внутренней передачей от 5 до 8 скоростей, как правило, работает лучше всего, если ваша передача на ровной поверхности является второй по величине передачей, около 70 дюймов передачи (развертывание 5,6 метра, коэффициент усиления 5,0, более или менее в зависимости от вашей силы и стиля педалирования).
). Тогда у вас будет одна более высокая передача для спуска и попутного ветра. Если вы едете там, где нет крутых подъемов, вы можете захотеть, чтобы третья по высоте передача 7- или 8-скоростной втулки была передачей на уровне земли, чтобы вы не раскручивались при сильном попутном ветре. Все современные 5-ступенчатые втулки имеют достаточный запас хода для умного ускорения при езде по городу. Втулки с 7 или 8 скоростями также предлагают более низкие передачи для подъема и, как правило, меньшие шаги между передачами.
9 или более скоростей
Если ступица имеет 9 или более скоростей, обычно требуется, чтобы шестерня на уровне земли была третьей по высоте. Опять же, как и в случае с ступицами с меньшей скоростью, это зависит от местности.
Гибридная передача
В гибридной передаче используется ступица с внутренним зацеплением вместе с передачей переключателя. Sturmey-Archer производит, а Sachs/SRAM раньше производила 3-скоростные втулки со шлицами для Shimano или Shimano-совместимой кассеты.
Эти ступицы особенно полезны на велосипедах, которые не могут использовать передний переключатель, а также на велосипедах с маленькими колесами, где повышающая высшая передача ступицы делает ненужной большую звездочку.
Стандартные кассеты, продаваемые с этими системами, работают нормально, но мне (Джону Аллену) больше нравятся другие комбинации. Стандартная 8-скоростная кассета Shimano CS-HG50-8, 11-13-15-17-19-21-24-28, хорошо работает с маленьким колесом. В более старой системе Sachs 3×7 с коротким корпусом кассеты с 7 скоростями кассета Shimano M, 13-15-17-19-21-24-28, или кассета D или F, 14-16-18-21-24 -28-32 хорошо, или 8 из 9 на 7, исключая самую маленькую звездочку стандартной кассеты Shimano XT или XTR — 12-14-16-18-21-24-28-32. Чтобы использовать 8 из 9комбинаций, вам нужна 9-скоростная цепь и 9-скоростной переключатель (или 8-скоростной переключатель с альтернативной прокладкой троса). Также возможно составить собственную комбинацию. Хорошие 9-ступенчатые кастомные комбинации: 13-15-17-19-21-23-25-28-32 и 11-13-15-17-19-21-24-28-32.
Для этих систем выберите звездочку так, чтобы наименьшая звездочка и средняя шестерня ступицы с прямым приводом давали около 75 дюймов зубчатой передачи (развертывание 6,0 м, коэффициент усиления 5,5). Обычно это снаряжение для плавания по ровной поверхности — оно может быть немного выше или ниже в зависимости от вашей силы. Лучше избегать использования очень маленькой звездочки, которая быстро изнашивается, хотя на велосипеде с маленькими колесами может быть более практичным просто рассчитывать на частую замену звездочки, чтобы избежать необходимости использовать большую звездочку. Используйте все звездочки со ступицей в ее наиболее эффективной средней передаче с прямым приводом. С рекомендованными здесь комбинациями переключение ступицы на низкую или высокую передачу дает вам пару дополнительных передаточных чисел в верхней и нижней части диапазона или быстрое переключение на пониженную передачу, если это необходимо в городском движении. Вы можете добавить передний переключатель и вторую звездочку, чтобы расширить нижнюю часть диапазона передач.
С любой ступицей свободного хода с внутренним зацеплением вы можете получить гибридную передачу с использованием двойных или тройных звездочек. Затем вы также должны использовать подпружиненный натяжитель цепи, который может быть задним переключателем без переключателя и троса. Таким образом, вы сможете насладиться быстрым переключением ступицы с внутренним зацеплением в холмистом городе, таком как Сан-Франциско, а также иметь «откатные» передачи. Многие ступицы имеют достаточно широкие шлицы, чтобы можно было установить две звездочки и переключать их с помощью заднего переключателя. 12–14, 13–15 и 14–16 зубьев или любые две звездочки с тремя зубьями, кроме 18–21 и 21–24, делят широкие ступени трехступенчатой передачи точно пополам. Используйте цепь переключателя и звездочки, предназначенные для нее. Используйте модифицированную кассетную звездочку Shimano (см. инструкции) для одного из двух. Другая звездочка представляет собой выпуклую звездочку, предназначенную для использования со ступицей с внутренним зацеплением и узкой цепью.
Поскольку такие звездочки обычно штампуются, как показанная ниже, чтобы поместиться в пространство для звездочки 1/8 дюйма, вам может потребоваться стачивать выступы на вогнутой наружу стороне звездочки, чтобы вы могли установить обе звездочки на шлицы ступицы. Проверьте расстояние между звездочками и ширину цепи, которая лучше всего подходит для них. Размещение выпуклой звездочки снаружи, как показано, или внутри, дает вам два варианта цепи.0005
Только с двумя звездочками или двумя цепными колесами переключение индексируется, даже если переключатели не индексируются! Эта установка не даст вам такого широкого диапазона, как гибридная передача с несколькими звездочками, но она дает 6 равномерно расположенных передач.
Кроме того, Sturmey-Archer производит специальную трехскоростную передачу с широким передаточным числом, используемую с двумя звездочками для гибридной передачи на складных велосипедах Brompton.
Вы также можете найти втулку Sturmey-Archer с внутренней передачей 1950-х годов с резьбовым приводом для звездочек гусеницы.
Можно также привинтить многоскоростную муфту свободного хода, хотя ее механизм свободного хода должен быть отключен, чтобы втулка перемещалась правильно. Для шлицевых приводов также были изготовлены двух- и трехскоростные группы звездочек.
Втулка с гибридной передачей собственного производства (Изображение предоставлено Марком Стоничем)
Некоторые втулки с внутренним зацеплением не рассчитаны на нагрузки от чрезвычайно крутых подъемов и большой нагрузки, что может привести к проблемам при самостоятельном изготовлении. гибридная передача. Обычно производители оценивают ступицы с точки зрения приемлемого соотношения звездочки и звездочки, но эта оценка на самом деле сводится только к «мы так усложним вращение педалей, что вы сойдете с педали и пойдете пешком». Нажатие более низкой передачи на тот же холм на самом деле меньше нагружает ступицу. Небольшое заднее колесо и плавное педалирование снижают нагрузку на ступицу.
Поворотный переключатель
Общий диапазон 206%, в прыжках:
| 1-й | 33,4% | 2-й | 15,7% | 3-й | 15,2% | 4-й | 15,7% | 5-й |
|---|
См.
список деталей для версии со стальным корпусом и версии с алюминиевым корпусом
Очевидно, они продаются только на японском рынке. Установка очень похожа на установку 7- и 8-скоростных втулок Shimano. — см. статья по установке хабов Nexus и Alfine .
Для получения конкретной информации о зубчатой передаче используйте мой Онлайн-калькулятор зубчатой передачи
Спасибо Мэтту Деккеру за предоставленные данные о Sturmey-Archer Sprinter.
Спасибо Аарону Госсу с сайта rideyourbike.com за совет по смазке.
| Коммерческие внутренние втулки Harris Cyclery Страница |
|---|
- Что нового
- Шелдон Браун на Facebook
- Отзывы и вопросы по сайту
Статьи Шелдона Брауна и других
- Что нового
- Новички
- Велосипедный глоссарий
- Тормоза
- Поездка на работу
- Велокомпьютеры
- Сделай сам
- Очерки и художественная литература
- Семейный велосипед
- Фиксированная передача
- Рамки
- Шестерни и трансмиссии
- Юмор
- Старые велосипеды
- Советы по ремонту
- Односкоростной
- Тандемы
- Универсал
- Видео
- Колеса
- Переводы
- Шелдон — мужчина
Сообщения о закрытии этого веб-сайта сильно преувеличены! Мы на sheldonbrown.


20 до 30
п. 3.8)
..6